Skip to content
VERMOD
  • HOME DESIGNS

  • ADDITIONAL OFFERINGS

  • MEDIA GALLERIES

  • HOME OWNERS PORTAL

MENU
×
  • About
    • Our History
    • Meet Our Team
    • Programs & Partners
  • Why VERMOD
    • Our Homes Are. . .
    • Affordability
    • Testimonials
  • Designs
    • Floor Plans
    • General Specifications
    • Media
  • Get Started
    • Financing
    • Visit a Model
  • Additional Offerings
  • News
  • Contact Us
  • Home Owners Portal
  • Join Our Team
VERMOD
MENU
×
  • About
    • Our History
    • Meet Our Team
    • Programs & Partners
  • Why VERMOD
    • Our Homes Are. . .
    • Affordability
    • Testimonials
  • Designs
    • Floor Plans
    • General Specifications
    • Media
  • Get Started
    • Financing
    • Visit a Model
  • Additional Offerings
  • News
  • Contact Us
  • Home Owners Portal
  • Join Our Team

SMALL LIVING

SMALL LIVING HOMES

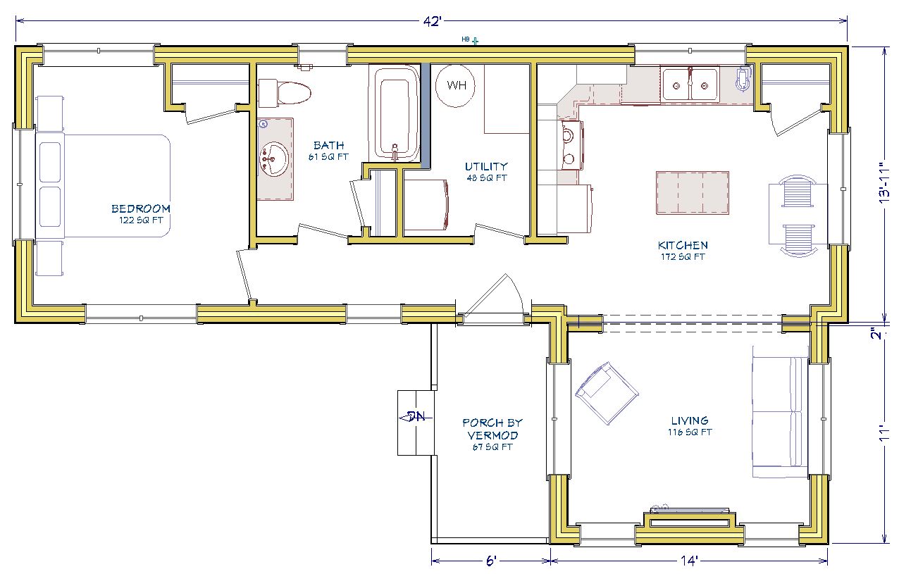
Modern Cottage

2 Box / 1 Bed / 1 Bath / 1 Level / 742 SQ FT

Exterior
Floor Plan

All VerMod homes are built to suit the homebuyerʼs budget and aesthetic preferences. Contact us for pricing information. Design fees and pricing vary based on level of customization.

CONTACT US
  • Get Started
  • Affordability
  • Financing
  • General Specifications
  • Testimonials
  • Photo Galleries
VISIT A MODEL

2677 Hartford Avenue ∙ PO Box 566 ∙ Wilder, VT 05088

©2024. VerMod, LLC | Privacy Policy | Website created by jbird.co