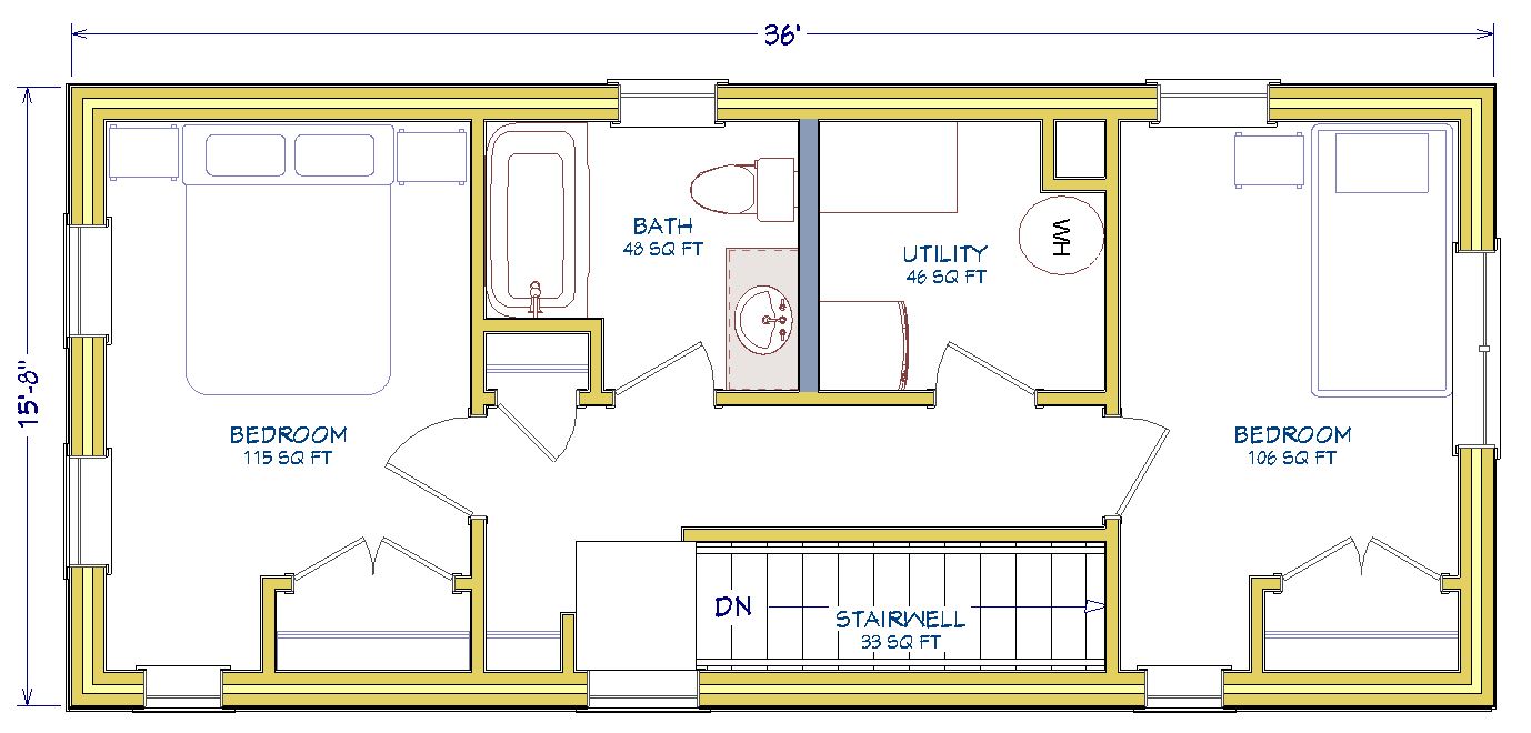
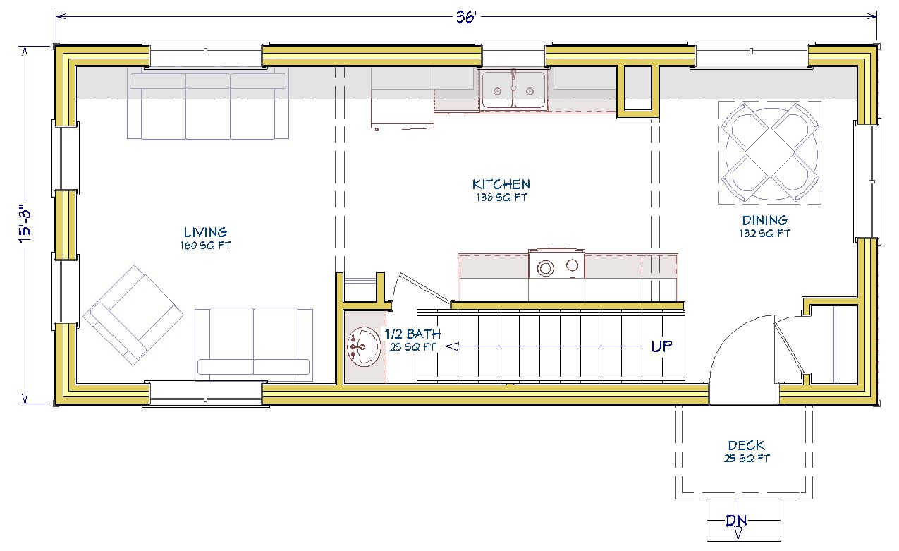
TWO BEDROOM HOMES
All VerMod homes are built to suit the homebuyerʼs budget and aesthetic preferences. Contact us for pricing information. Design fees and pricing vary based on level of customization.
VERMOD PARTNERS
All VerMod homes are built to suit the homebuyerʼs budget and aesthetic preferences. Contact us for pricing information. Design fees and pricing vary based on level of customization.